Bauabschnitt 1: Grundschule
Bauabschnitt 2: Mensa und Ganztagesschule
Netto-Raumfläche (NRF): ca. 3.500qm (Phase 1) + 850qm (Phase 2)
Brutto-Grundfläche (BGF): ca. 4.100qm (Phase 1) + 920qm (Phase 2)
Außenanlagen: ca. 2.350qm
Lageplan
LEITIDEE
Die prägenden Parameter des Ortes – mit Präsenz des Kindergartens, der Sportfeldern und der Kopernikus-Realschule – werden als Katalysatoren für den Entwurf genutzt und mit den Anforderungen des Raumprogramms in Einklang gebracht. Die einzelnen Nutzungen sind in zwei differenzierten Volumen zusammengefasst. Der Erweiterungsbau komplettiert den vorhandenen Platz und stärkt die neue Mitte des Campus.
Der Bildungskomplex wird behutsam durch ein freistehendes 3-geschos¬siges Gebäude im ersten Bauabschnitt konzipiert. Die solitäre Stellung und die Höhe der Baukörper entwickeln sich aus dem vorhandenen städtebaulichen Kontext der umliegenden Bebauung und bilden so einen integrativen Bestandteil der gesamten Liegenschaft.
Die zentrale Hauptachse wird vom eingeschossigen, langgestreckten Baukörper der Mensa und Ganztagesschule, sowie der Grundschule flankiert.
Die prägenden Parameter des Ortes – mit Präsenz des Kindergartens, der Sportfeldern und der Kopernikus-Realschule – werden als Katalysatoren für den Entwurf genutzt und mit den Anforderungen des Raumprogramms in Einklang gebracht. Die einzelnen Nutzungen sind in zwei differenzierten Volumen zusammengefasst. Der Erweiterungsbau komplettiert den vorhandenen Platz und stärkt die neue Mitte des Campus.
Der Bildungskomplex wird behutsam durch ein freistehendes 3-geschos¬siges Gebäude im ersten Bauabschnitt konzipiert. Die solitäre Stellung und die Höhe der Baukörper entwickeln sich aus dem vorhandenen städtebaulichen Kontext der umliegenden Bebauung und bilden so einen integrativen Bestandteil der gesamten Liegenschaft.
Die zentrale Hauptachse wird vom eingeschossigen, langgestreckten Baukörper der Mensa und Ganztagesschule, sowie der Grundschule flankiert.
STÄDTEBAULICHES KONZEPT
Ausgehend von der Kopernikusstraße als Haupterschließungsstraße, die alle Campusgebäude miteinander verbindet, sieht das städtebauliche Konzept eine Neuordnung bzw. eine Neuorientierung der Freiflächen zwischen den Gebäuden für die Grundschule und die Ganztagesschule vor.
Die verschiedenen Aufenthaltsqualitäten dieser Bereiche werden herausgearbeitet und einem System untergeordnet. Dementsprechend werden alle Höfe, die östlich und westlich der Achse liegen als „grüne“ Höfe ausformuliert.
Die Achse wird mit befestigten Bereichen gestaltet und bildet damit das Gegenstück zu den landschaftlichen Frei- und Pausenräumen.
An dieser Achse angelagert, befinden sich zusätzlich die 131 mit einer Holzstruktur überdachten Fahrradstellplätze. Die PKW-Stellplätze, sowie Haltestellen für Bus, werden auf der Kopernikusstraße angegliedert.
Über die rückwärtige Wirtschaftszufahrt an der Austraße erfolgt die vom Schulverkehr unabhängige Versorgung der Kantine und des Gesamtgebäudes über einen Aufzug und eine Innentreppe. Diese verbinden die Kantine mit den Räumen im Untergeschoss. So wird ein verkehrsfreies Grundstück gewährleistet.
ERSCHLIESSUNG
Der prägnante Haupteingang zum dreigeschossigen Gebäude erfolgt grundsätzlich barrierefrei über die nördlich angelegte Hauptachse von der Kopernikusstraße unter der Eingangspergola, die durch Lichtöffnungen natürlich beleuchtet wird.
Ein weiterer Eingang von der Austraße ermöglicht kurze Erschließungswege. Der zur Achse orientierte Haupteingang erschließt das Foyer des Hauptgebäudes.
Das angrenzende großzügige Foyer vermittelt zwischen den angrenzenden Räumen wie dem Bewegungsland, den Profilräume und der Bibliothek, empfängt die Schüler und verteilt auf die entsprechenden Jahrgangsbereiche.
Der offene Übergang zwischen Foyer und Bibliothek mit Sekretariatstresen vermittelt das Bild einer zeitgemäßen Schullandschaft mit offenen Strukturen und permanenter Zugänglichkeit. Diese erfolgen durch visuelle Sichtverbindungen und bilden ein „Herz“ aus.
Im mittleren Bereich des Foyers wird eine kleine zentrale Aula angegliedert. Diese erhält natürliches Licht durch das Atrium. Anliegend zur Aula führt die Haupttreppe in die oberen Geschosse, in denen sich Klassenräume befinden. Im ersten Geschoss sind die Klassenräume sowie Nebenräume für die ersten und zweiten Jahrgänge. Das gleiche gilt entsprechend für die Klassenräume der dritten und vierten Jahrgänge im zweiten Geschoss.
Durch das Atrium wird so eine mögliche direkte und spontane Kommunikation, auch geschossübergreifend gefördert. Die Aufenthaltsräume sind an der Fassade angeordnet.
Im Anschluss ans zweite Atrium ist der Verwaltungsbereich sowie das Lehrerzimmer klar strukturiert organisiert. Das Atrium dient als Kommunikations- und Pausenbereich für die Mitarbeiter und Lehrer.
Die Atrien sind parallel zur Hauptachse angeordnet und versorgen den Baukörper mit natürlichem Licht. Über Oberlichter wird die natürliche Belichtung sichergestellt.
Im Untergeschoss befinden sich Werkstätten, Serverraum, Technikräume und Lagerflächen.
Die Vertikalerschließung der Klassengeschosse und des Untergeschosses wird zusätzlich über zwei Treppenhäuser und einen barrierefreien Personenaufzug gewährleistet.
Der prägnante Haupteingang zum dreigeschossigen Gebäude erfolgt grundsätzlich barrierefrei über die nördlich angelegte Hauptachse von der Kopernikusstraße unter der Eingangspergola, die durch Lichtöffnungen natürlich beleuchtet wird.
Ein weiterer Eingang von der Austraße ermöglicht kurze Erschließungswege. Der zur Achse orientierte Haupteingang erschließt das Foyer des Hauptgebäudes.
Das angrenzende großzügige Foyer vermittelt zwischen den angrenzenden Räumen wie dem Bewegungsland, den Profilräume und der Bibliothek, empfängt die Schüler und verteilt auf die entsprechenden Jahrgangsbereiche.
Der offene Übergang zwischen Foyer und Bibliothek mit Sekretariatstresen vermittelt das Bild einer zeitgemäßen Schullandschaft mit offenen Strukturen und permanenter Zugänglichkeit. Diese erfolgen durch visuelle Sichtverbindungen und bilden ein „Herz“ aus.
Im mittleren Bereich des Foyers wird eine kleine zentrale Aula angegliedert. Diese erhält natürliches Licht durch das Atrium. Anliegend zur Aula führt die Haupttreppe in die oberen Geschosse, in denen sich Klassenräume befinden. Im ersten Geschoss sind die Klassenräume sowie Nebenräume für die ersten und zweiten Jahrgänge. Das gleiche gilt entsprechend für die Klassenräume der dritten und vierten Jahrgänge im zweiten Geschoss.
Durch das Atrium wird so eine mögliche direkte und spontane Kommunikation, auch geschossübergreifend gefördert. Die Aufenthaltsräume sind an der Fassade angeordnet.
Im Anschluss ans zweite Atrium ist der Verwaltungsbereich sowie das Lehrerzimmer klar strukturiert organisiert. Das Atrium dient als Kommunikations- und Pausenbereich für die Mitarbeiter und Lehrer.
Die Atrien sind parallel zur Hauptachse angeordnet und versorgen den Baukörper mit natürlichem Licht. Über Oberlichter wird die natürliche Belichtung sichergestellt.
Im Untergeschoss befinden sich Werkstätten, Serverraum, Technikräume und Lagerflächen.
Die Vertikalerschließung der Klassengeschosse und des Untergeschosses wird zusätzlich über zwei Treppenhäuser und einen barrierefreien Personenaufzug gewährleistet.
FREIANLAGEN
Zwischen Neubau und der Kopernikusstraße spannt sich ein großzügiger, natursteinbelegter Vorbereich auf, der den Bereich als Treffpunkt für die Schüler bildet. Diesen betrachtet man als „Eingangswald“, da er durch starke Präsenz geprägt ist.
Die Achse schafft eine einfache Orientierung, gliedert Freiräume mit neuen Aufenthaltsqualitäten und schafft eine Schule der kurzen Wege. Die Rasenflächen werden im Achsenbereich durch großformatige Betonplattenbänder ergänzt.
Der Schulplatz als zentraler Bereich der Schule wird durch eine zeitgemäße Neugestaltung den heutigen und zukünftigen Ansprüchen konzipiert. Alle bestehenden Bäume werden erhalten und verbleiben in Rasenintarsien auf dem steinernen Platz. Das Kleinsteinpflaster, welches schon im Vorplatz des Gebäudes verwendet wurde, wird auf dem Platz teilweise weitergeführt. Viele Sitzmöglichkeiten bieten ein hohes Maß an Aufenthaltsqualität und zonieren gleichzeitig den Platz. Ein ebenerdiges Wasserspiel bildet einen zusätzlichen Akzent.
Die spannungsvollen Außenräume, Spiel- und Pausenräume, sowie die Beziehungen zueinander, entstehen zur umgebenden Bebauung und beziehen sich auf die Hauptachse. Diese Bereiche werden mit vielfältigen Bodenbelägen, wie wassergebundene Wege oder befestigten Böden gefasst, sowie als Rasenfläche gestaltet.
BARRIEREFREIHEIT
Alle öffentlich zugänglichen Bereiche werden schwellenlos ausgeführt. Die große Rampe weist eine rollstuhlgerechte Steigung von maximal 6% aus.
Die Türbreiten im Gebäude sind auf Rollstuhlbreiten angepasst. Auf jedem Geschoss wird eine barrierefreie Toilette mit Notruf angeordnet.
Erdgeschoss
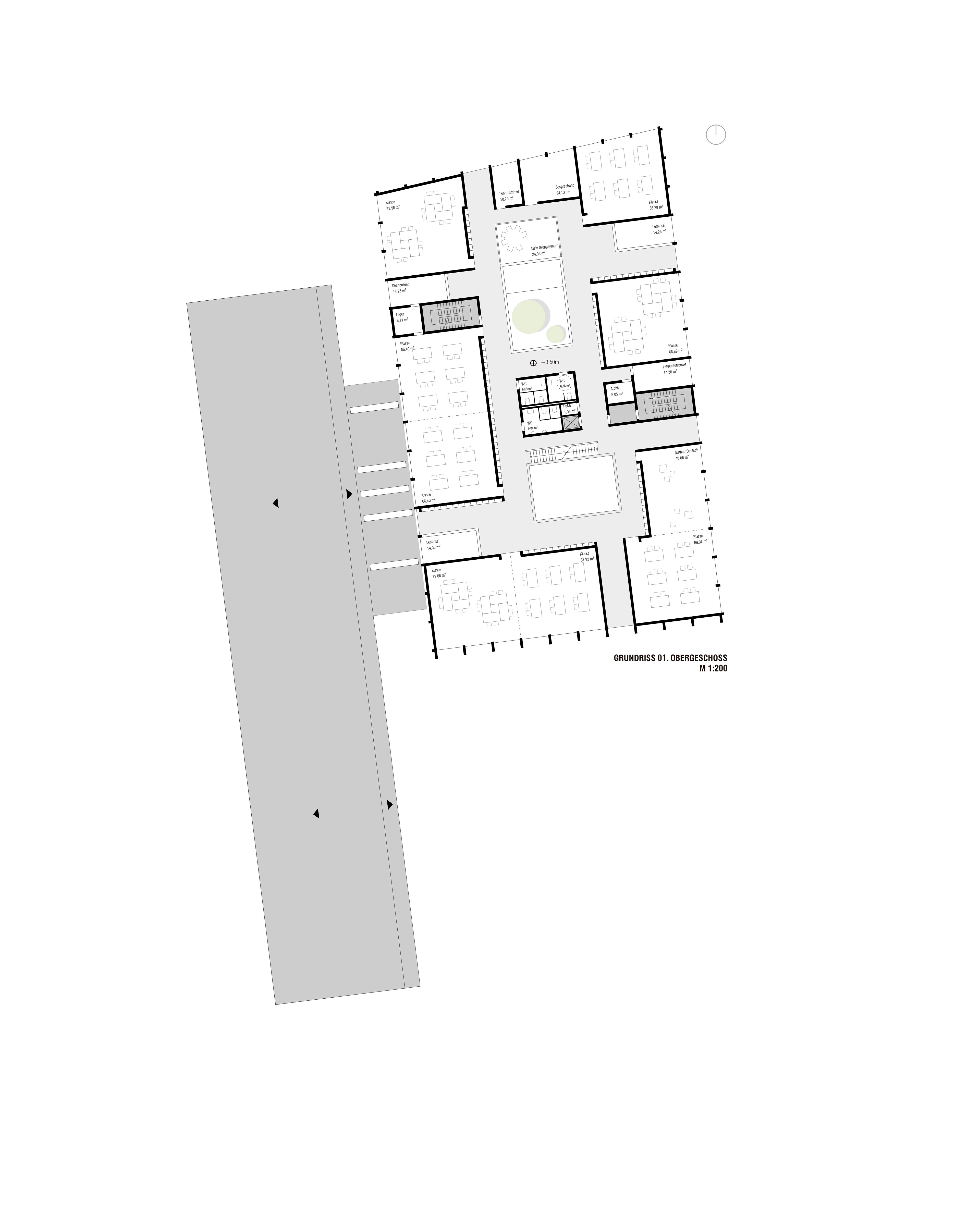
1. Obergeschoss
2. Obergeschoss
BAUWEISE
Die zwei Gebäude zeichnen sich durch ihre ressourcenschonende Konstruktionsweise, ein innovatives Energiekonzept und einen hohen Vorfabrikationsgrad der Bauteile aus.
Die Gebäude beider Bauschnitte werden in einer Mischbauweise (Holz-Glas-Beton) ausgeführt,
wobei diese größtenteils aus Holzrahmenelementen bestehen und Beton nur dort, wo er statische Vorteile bietet, eingesetzt wird, wie z.B. für den Schacht des Aufzuges oder für das Untergeschoss.
Diese Bauweise erfüllt höchste Ansprüche an Statik und ermöglicht schlanke Wände und große freie Spannweiten bei Decken und Dächern. Das Brettsperrholz wird vollflächig verbaut. Dies ermöglicht eine Bauweise, die von der Planung bis zur Ausführung und Kontrolle auf der Baustelle effektiv und leicht handhabbar ist.
Brettsperrholzelemente werden als Deckenelemente sowie als Innenwände eingesetzt.
Die zwei Gebäude zeichnen sich durch ihre ressourcenschonende Konstruktionsweise, ein innovatives Energiekonzept und einen hohen Vorfabrikationsgrad der Bauteile aus.
Die Gebäude beider Bauschnitte werden in einer Mischbauweise (Holz-Glas-Beton) ausgeführt,
wobei diese größtenteils aus Holzrahmenelementen bestehen und Beton nur dort, wo er statische Vorteile bietet, eingesetzt wird, wie z.B. für den Schacht des Aufzuges oder für das Untergeschoss.
Diese Bauweise erfüllt höchste Ansprüche an Statik und ermöglicht schlanke Wände und große freie Spannweiten bei Decken und Dächern. Das Brettsperrholz wird vollflächig verbaut. Dies ermöglicht eine Bauweise, die von der Planung bis zur Ausführung und Kontrolle auf der Baustelle effektiv und leicht handhabbar ist.
Brettsperrholzelemente werden als Deckenelemente sowie als Innenwände eingesetzt.
Innenperspektive
FASSADENKONZEPT UND INNENRÄUME
Auf dem betonierten Sockel erhebt sich das würfelförmige Gebäude aus vertikal rhythmisierter Holzfassade. In einem Achsabstand von 0,70m erzeugt die nach außen gelegter Konstruktion eine gleichmäßig gegliederte Fassade.
Die Fassade ist mit einer Fassadenbekleidung aus hellem Eichenholz aus den staatlichen Wäldern der Region Bad Mergentheim. Diese ist oberhalb des Umschlagplatzes in einer Holz-Modulbauweise konstruiert. Diese Bauweise erfüllt nicht nur ästhetische, sondern auch ökologische und ökonomische Anforderungen und ermöglicht eine deutliche Reduktion der Bauzeit.
Das angrenzende Mensagebäude wurde mit der gleichen Konstruktionsart, jedoch mit einer Fassadenbekleidung aus vorvergrauter Weisstanne, entworfen.
Die geschlossenen Fassadenbereiche werden mit 28cm starker Mineralwolle gedämmt. Auf der Innenseite ist die Fassadenwand mit einer perforierten Holzwerkstoffplatte (ca. 15% Lochanteil) verkleidet, die zur besseren Raumakustik beiträgt.
Die Klassenräume an den vier Ecken des Gebäudes gestalten die Außenfassade mit. Der Lichteinfall wird aufgrund der Fassadengestaltung unterschiedlich in den beiden Geschossen erfolgen.
Im Inneren gliedert die sichtbare Struktur aus Baubuche den Raum und schafft eine lebendige Atmosphäre. Die modulare Struktur bestimmt die Größen der Klassen und bietet Flexibilität, um Einheiten zusammenzulegen und unterschiedliche Bedürfnisse aufnehmen zu können.
Auf dem betonierten Sockel erhebt sich das würfelförmige Gebäude aus vertikal rhythmisierter Holzfassade. In einem Achsabstand von 0,70m erzeugt die nach außen gelegter Konstruktion eine gleichmäßig gegliederte Fassade.
Die Fassade ist mit einer Fassadenbekleidung aus hellem Eichenholz aus den staatlichen Wäldern der Region Bad Mergentheim. Diese ist oberhalb des Umschlagplatzes in einer Holz-Modulbauweise konstruiert. Diese Bauweise erfüllt nicht nur ästhetische, sondern auch ökologische und ökonomische Anforderungen und ermöglicht eine deutliche Reduktion der Bauzeit.
Das angrenzende Mensagebäude wurde mit der gleichen Konstruktionsart, jedoch mit einer Fassadenbekleidung aus vorvergrauter Weisstanne, entworfen.
Die geschlossenen Fassadenbereiche werden mit 28cm starker Mineralwolle gedämmt. Auf der Innenseite ist die Fassadenwand mit einer perforierten Holzwerkstoffplatte (ca. 15% Lochanteil) verkleidet, die zur besseren Raumakustik beiträgt.
Die Klassenräume an den vier Ecken des Gebäudes gestalten die Außenfassade mit. Der Lichteinfall wird aufgrund der Fassadengestaltung unterschiedlich in den beiden Geschossen erfolgen.
Im Inneren gliedert die sichtbare Struktur aus Baubuche den Raum und schafft eine lebendige Atmosphäre. Die modulare Struktur bestimmt die Größen der Klassen und bietet Flexibilität, um Einheiten zusammenzulegen und unterschiedliche Bedürfnisse aufnehmen zu können.
Sämtliche Böden erhalten einen schwimmenden Estrich auf Trittschalldämmung. Der Klassenbereichen sowie Fluren werden mit farbigem Linoleum ausgestattet. Das Material wird aufgrund seiner natürlichen Beschaffenheit und hervorragenden Ökobilanz bevorzugt. Die hohe Strapazierfähigkeit, Pflegeleichtigkeit und das gute Kosten-Nutzenverhältnis sowie die Langlebigkeit des Materials sind entscheidende Vorteile gegenüber anderen Bodenbelägen.
Im Bürobereich wird Nadelvlies zum Einsatz kommen. Das Material sorgt für eine ruhige Raumakustik.
Für die Kantine sowie für die Teilflächen werden Vinylbeläge aufgrund ihrer hohen Belastbarkeit bei gleichzeitiger Pflegeleichtigkeit eingesetzt.
Die Windfänge sowie die sekundäre Ein-/Ausgänge werden mit Sauberlaufzonen ausgestattet. Diese schützen angrenzende Bodenbeläge vor Verschmutzung.
Die Zirkulationszonen werden mit abgehängten Lamellendecken mit akustischen Anforderungen ausgestattet.
Die Trennwände werden als Holzständerwerk mit Flachsdäm¬mung und Lehmbauplatten ausgeführt. Innentüren sind als Voll¬holztüren in Blockzargen und Lärchenfurnier vorgesehen.
Zur besseren jährlichen Feuchteregulierung werden sämtliche Wandflächen mit einem zweilagigen Lehmputz versehen und in Teilbereichen mineralisch weiß gestrichen.
Das Gesamtobjekt wird auf Basis eines Farbkonzeptes gestaltet, das von partiellen monochromen Farbflächen sowie von natürlichen Materialien wie z.B. Holz bestimmt wird.
Im Bürobereich wird Nadelvlies zum Einsatz kommen. Das Material sorgt für eine ruhige Raumakustik.
Für die Kantine sowie für die Teilflächen werden Vinylbeläge aufgrund ihrer hohen Belastbarkeit bei gleichzeitiger Pflegeleichtigkeit eingesetzt.
Die Windfänge sowie die sekundäre Ein-/Ausgänge werden mit Sauberlaufzonen ausgestattet. Diese schützen angrenzende Bodenbeläge vor Verschmutzung.
Die Zirkulationszonen werden mit abgehängten Lamellendecken mit akustischen Anforderungen ausgestattet.
Die Trennwände werden als Holzständerwerk mit Flachsdäm¬mung und Lehmbauplatten ausgeführt. Innentüren sind als Voll¬holztüren in Blockzargen und Lärchenfurnier vorgesehen.
Zur besseren jährlichen Feuchteregulierung werden sämtliche Wandflächen mit einem zweilagigen Lehmputz versehen und in Teilbereichen mineralisch weiß gestrichen.
Das Gesamtobjekt wird auf Basis eines Farbkonzeptes gestaltet, das von partiellen monochromen Farbflächen sowie von natürlichen Materialien wie z.B. Holz bestimmt wird.